Torstäva 13:25
Planområdet är beläget på Torsnäs och är cirka 23 hektar stort.
Detaljplanens syfte
Detaljplanens syfte är att pröva möjligheten för ny bostadsbebyggelse inom fastigheten Torstäva 13:25, i anslutning till befintlig bostadsbebyggelse på Torsnäs. Avsikten är att skapa 21 villatomter för permanentbostäder och, i enlighet med den fördjupade översiktsplanen för Trummenäsområdet samt översiktsplan 2050 (samrådsversionen), skapa förutsättningar att bygga attraktiva bostäder i havsnära läge. Detaljplanens syfte är även att bevara värdefull natur.
En exploatering av området möjliggör även en förbättrad vägstandard på Torsnäsplatån samt en asfalterad gång- och cykelväg inklusive belysning längs med Torsnäsvägen.
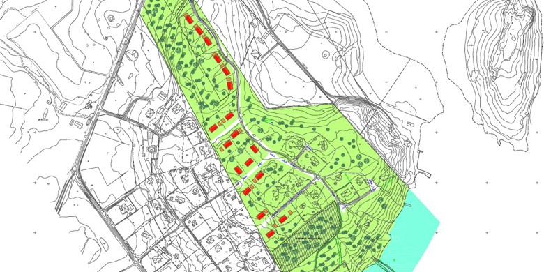
Förslag
Planområdet är beläget på den nordöstra delen av Torsnäshalvön och gränsar i norr till Torsnäsvägen, i sydväst till befintligt fritidshusområde och i söder till Torstävaviken. Fastigheten Torstäva 13:25 är privatägd.
Planområdet föreslås bebyggas med 21 villatomter för permanentbostäder och, i enlighet med den fördjupade översiktsplanen för Trummenäsområdet och översiktsplan Karlskrona 2050 (samrådsversionen), skapa förutsättningar att bygga attraktiva bostäder i havsnära läge.
Bebyggelsen föreslås få uppföras i 1-2 våningar. En våning närmast vattnet samt utmed Torsnäsvägen och två våningar inom övrigt område på Torsnäsplatån.
Inom planområdet föreslås en brygga för småbåtar. Området närmast vattnet samt andra områden med värdefull vegetation planläggs som natur.
En exploatering av området möjliggör förbättrad vägstandard på Torsnäsplatån samt en asfalterad gång- och cykelväg inklusive belysning längs med Torsnäsvägen, mellan Friggas väg och Gängletorpsvägen.
Antagande
Kommunfullmäktige antog detaljplanen den 3 februari 2022. Efter överklagande till mark- och miljödomstolen vann detaljplanen laga kraft 2022-10-07.
